
设计公司: |
/ |
项目类型: |
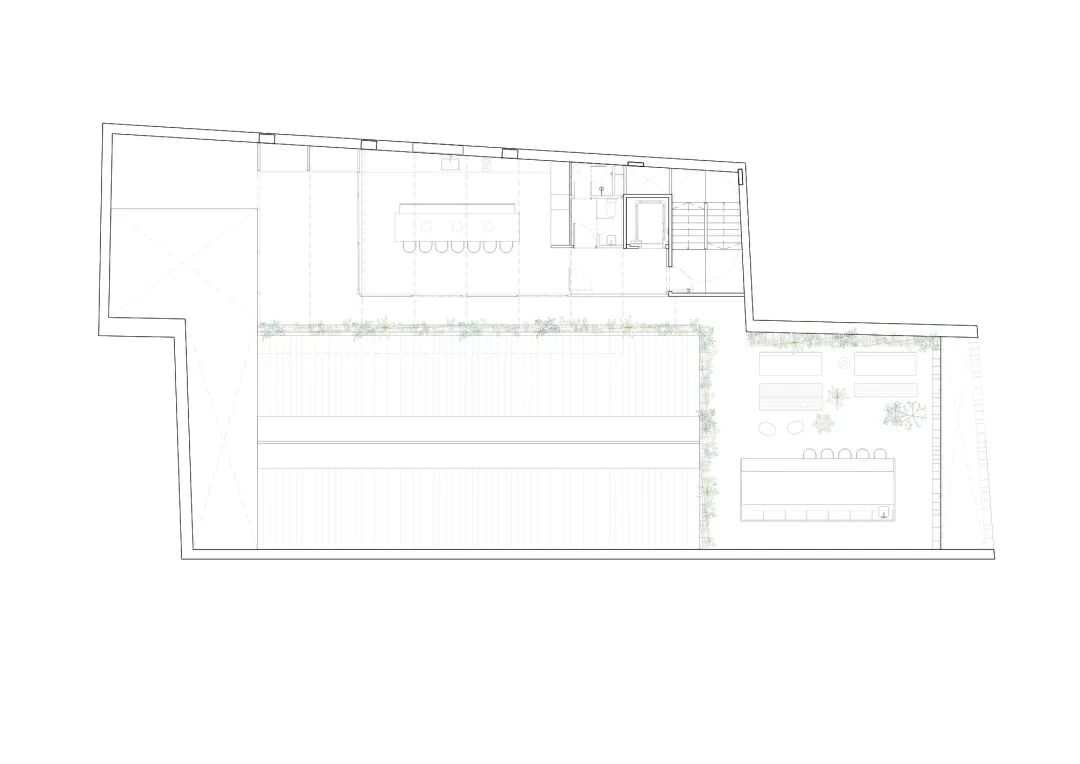
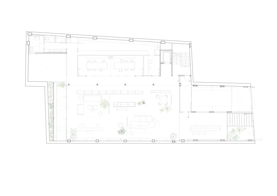
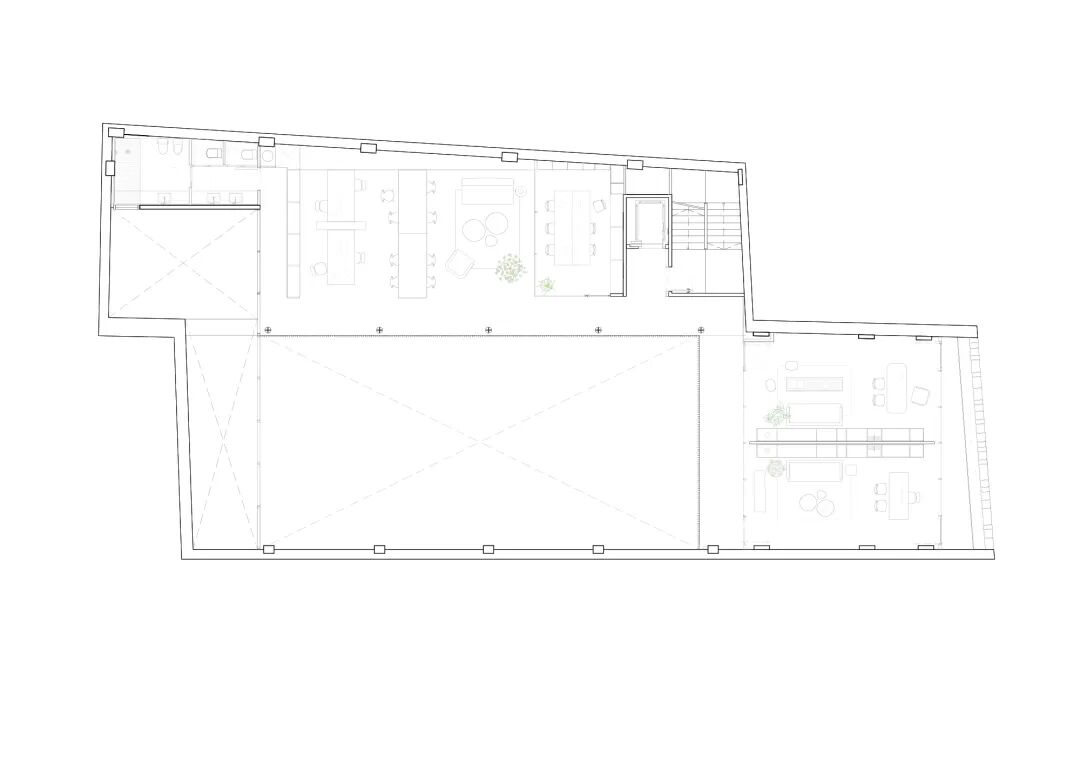
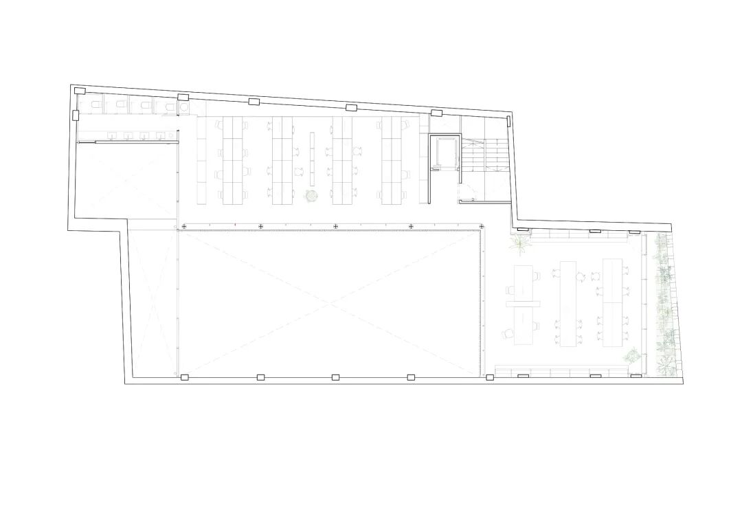
城市更新 |
业主单位: |
/ |
项目地点: |
Palermo, Buenos Aires Argentina. |
主持设计师: |
Ana Smud Studio |
设计团队: |
Ana Sol Smud, Alberto Smud, Sasha Molczadzki, Camila Jalife, Agustina Falcón, Milagros Ratto, Leila Matzkin. |