入驻品牌
REARD活动版块
活动预告
活动回顾
视频回顾
× 会员管理
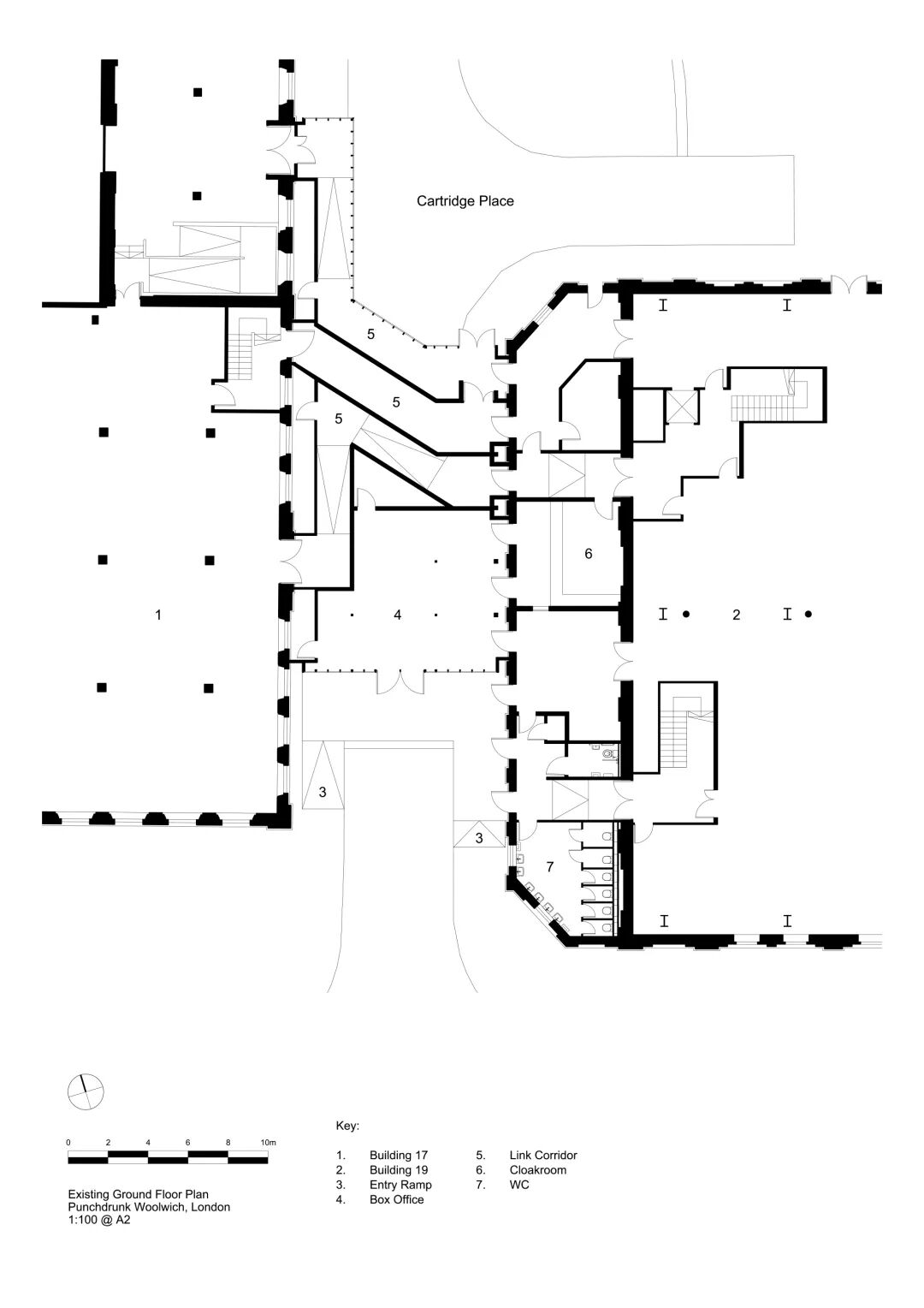
Renewal-Zone:沉浸式话剧《不眠之夜》出品方的新基地︱工业保护建筑打造交互场景体验
设计公司: Haworth Tompkins
项目类型: 城市更新
业主单位: Punchdrunk
项目地点: 伦敦东南部
主持设计师: /
设计团队: /

Renewal-Zone:沉浸式话剧《不眠之夜》出品方的新基地︱工业保护建筑打造交互场景体验_0000_图层-1.jpgRenewal-Zone:沉浸式话剧《不眠之夜》出品方的新基地︱工业保护建筑打造交互场景体验_0001_图层-2.jpgRenewal-Zone:沉浸式话剧《不眠之夜》出品方的新基地︱工业保护建筑打造交互场景体验_0002_图层-3.jpgRenewal-Zone:沉浸式话剧《不眠之夜》出品方的新基地︱工业保护建筑打造交互场景体验_0003_图层-4.jpgRenewal-Zone:沉浸式话剧《不眠之夜》出品方的新基地︱工业保护建筑打造交互场景体验_0004_图层-5.jpgRenewal-Zone:沉浸式话剧《不眠之夜》出品方的新基地︱工业保护建筑打造交互场景体验_0005_图层-6.jpgRenewal-Zone:沉浸式话剧《不眠之夜》出品方的新基地︱工业保护建筑打造交互场景体验_0006_图层-7.jpgRenewal-Zone:沉浸式话剧《不眠之夜》出品方的新基地︱工业保护建筑打造交互场景体验_0007_图层-8.jpgRenewal-Zone:沉浸式话剧《不眠之夜》出品方的新基地︱工业保护建筑打造交互场景体验_0008_图层-9.jpg

640-9.jpeg
640-10.jpeg
640-11.jpeg

Renewal-Zone:沉浸式话剧《不眠之夜》出品方的新基地︱工业保护建筑打造交互场景体验_0009_图层-10.jpg


640-13.jpeg
640-14.jpeg
640-15.jpeg

Renewal-Zone:沉浸式话剧《不眠之夜》出品方的新基地︱工业保护建筑打造交互场景体验_0010_图层-11.jpgRenewal-Zone:沉浸式话剧《不眠之夜》出品方的新基地︱工业保护建筑打造交互场景体验_0011_图层-12.jpgRenewal-Zone:沉浸式话剧《不眠之夜》出品方的新基地︱工业保护建筑打造交互场景体验_0012_图层-13.jpgRenewal-Zone:沉浸式话剧《不眠之夜》出品方的新基地︱工业保护建筑打造交互场景体验_0013_图层-14.jpgRenewal-Zone:沉浸式话剧《不眠之夜》出品方的新基地︱工业保护建筑打造交互场景体验_0014_图层-15.jpgRenewal-Zone:沉浸式话剧《不眠之夜》出品方的新基地︱工业保护建筑打造交互场景体验_0015_图层-16.jpgRenewal-Zone:沉浸式话剧《不眠之夜》出品方的新基地︱工业保护建筑打造交互场景体验_0016_图层-17.jpgRenewal-Zone:沉浸式话剧《不眠之夜》出品方的新基地︱工业保护建筑打造交互场景体验_0017_图层-18.jpg


0
全部评论
相关推荐
>联系我们
REARD团队
电话:18321317492 | 021-66690276
电子邮件:info@reardatchina.com
微信小程序
微信关注
版权所有 ©上海锐埃文化传媒有限公司|REARDatChina.com|reard-urbanrenewal.com 沪ICP备19014984号-1|沪ICP备2022003455号-1
(https://beian.miit.gov.cn/)