
设计公司: |
森磊国际 |
项目类型: |
城市更新 |
业主单位: |
深圳市宏发光明房地产开发有限公司 |
项目地点: |
深圳市·光明区 |
主持设计师: |
谈芳 |
设计团队: |
郇昌磊 罗克贵 冯世有 庄汉森 黄文宇 陈博 齐正勇 元圳铿 张旭丽 吕乐 秦宁 曾单单 陈旭垚 李瑞特 金建平 刘承兴 伍俊明 徐加林 彭诺希 杨龙 兰增 温炜 姚彩美 刘启泰 邓琪瑜 李波 范衍彬 |













<滑动查看>

<滑动查看>

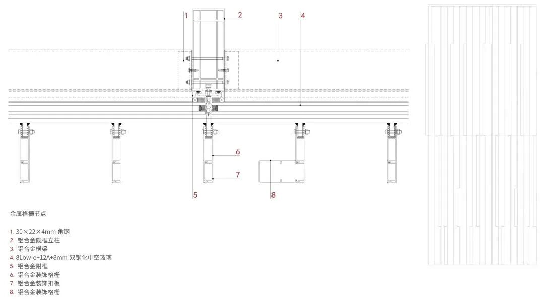
<滑动查看 金属格栅节点设计>


<滑动查看>
