入驻品牌
REARD活动版块
活动预告
活动回顾
视频回顾
× 会员管理
【第四届REARD城市更新奖获奖作品赏析】太阳中心S1楼装修改造项目|北京维拓时代建筑设计股份有限公司
设计公司: 北京维拓时代建筑设计股份有限公司
项目类型: 城市更新
业主单位: 中融长河资本
项目地点: 北京市朝阳区七圣中街 12号院 1号楼
主持设计师: /
设计团队: /

【第四届REARD城市更新奖获奖作品赏析】太阳中心S1楼装修改造项目|北京维拓时代建筑设计股份有限公_0000_图层-1 拷贝.jpg【第四届REARD城市更新奖获奖作品赏析】太阳中心S1楼装修改造项目|北京维拓时代建筑设计股份有限公_0001_图层-2 拷贝.jpg【第四届REARD城市更新奖获奖作品赏析】太阳中心S1楼装修改造项目|北京维拓时代建筑设计股份有限公_0002_图层-3 拷贝.jpg

1.png
2.png
3.png
4.png




【第四届REARD城市更新奖获奖作品赏析】太阳中心S1楼装修改造项目|北京维拓时代建筑设计股份有限公_0003_图层-4 拷贝.jpg【第四届REARD城市更新奖获奖作品赏析】太阳中心S1楼装修改造项目|北京维拓时代建筑设计股份有限公_0004_图层-5 拷贝.jpg【第四届REARD城市更新奖获奖作品赏析】太阳中心S1楼装修改造项目|北京维拓时代建筑设计股份有限公_0005_图层-6 拷贝.jpg【第四届REARD城市更新奖获奖作品赏析】太阳中心S1楼装修改造项目|北京维拓时代建筑设计股份有限公_0006_图层-7 拷贝.jpg【第四届REARD城市更新奖获奖作品赏析】太阳中心S1楼装修改造项目|北京维拓时代建筑设计股份有限公_0007_图层-8 拷贝.jpg


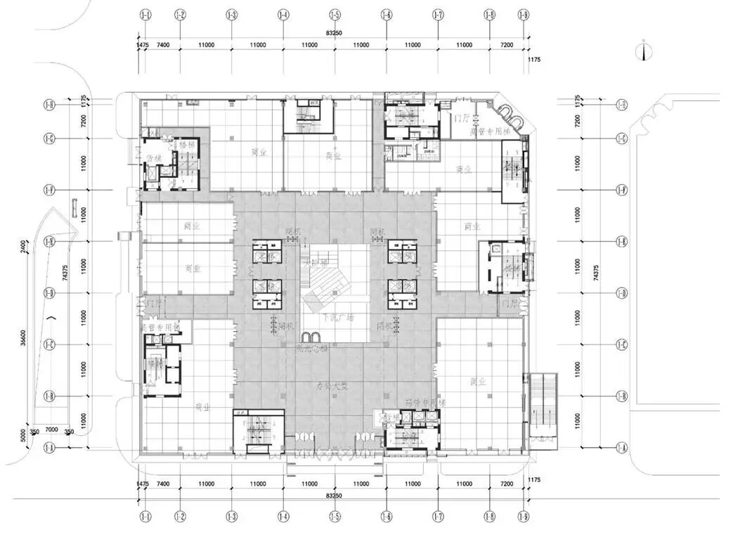
11.jpg

首层平面图

22.jpg

四层平面图

33.jpg

地下一层平面图

44.jpg

地下二层平面图






【第四届REARD城市更新奖获奖作品赏析】太阳中心S1楼装修改造项目|北京维拓时代建筑设计股份有限公_0009_图层-10 拷贝.jpg【第四届REARD城市更新奖获奖作品赏析】太阳中心S1楼装修改造项目|北京维拓时代建筑设计股份有限公_0010_图层-11 拷贝.jpg【第四届REARD城市更新奖获奖作品赏析】太阳中心S1楼装修改造项目|北京维拓时代建筑设计股份有限公_0011_图层-12.jpg


0
全部评论
相关推荐
>联系我们
REARD团队
电话:18321317492 | 021-66690276
电子邮件:info@reardatchina.com
微信小程序
微信关注
版权所有 ©上海锐埃文化传媒有限公司|REARDatChina.com|reard-urbanrenewal.com 沪ICP备19014984号-1|沪ICP备2022003455号-1
(https://beian.miit.gov.cn/)