入驻品牌
REARD活动版块
活动预告
活动回顾
视频回顾
× 会员管理
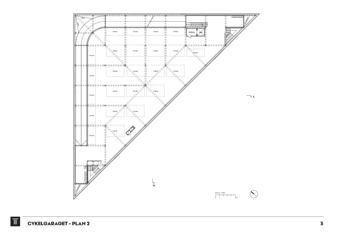
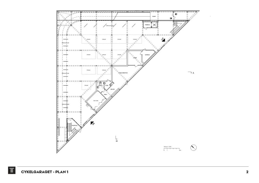
Renewal-Zone:有温度的北欧设计︱钢木车库的可持续协奏
设计公司: Tengbom
项目类型: 城市更新
业主单位: /
项目地点: Katarinavägen 15, 116 45 Stockholm, Sweden Completion Year: 2019
主持设计师: Cecilia Öberg
设计团队: /

Renewal-Zone:有温度的北欧设计︱钢木车库的可持续协奏_0000_图层-1 拷贝.jpgRenewal-Zone:有温度的北欧设计︱钢木车库的可持续协奏_0001_图层-2 拷贝.jpgRenewal-Zone:有温度的北欧设计︱钢木车库的可持续协奏_0002_图层-3.jpg

Renewal-Zone:有温度的北欧设计︱钢木车库的可持续协奏_0003_图层-4 拷贝.jpgRenewal-Zone:有温度的北欧设计︱钢木车库的可持续协奏_0004_图层-5 拷贝.jpgRenewal-Zone:有温度的北欧设计︱钢木车库的可持续协奏_0005_图层-6 拷贝.jpgRenewal-Zone:有温度的北欧设计︱钢木车库的可持续协奏_0006_图层-7 拷贝.jpgRenewal-Zone:有温度的北欧设计︱钢木车库的可持续协奏_0007_图层-8 拷贝.jpgRenewal-Zone:有温度的北欧设计︱钢木车库的可持续协奏_0008_图层-9 拷贝.jpgRenewal-Zone:有温度的北欧设计︱钢木车库的可持续协奏_0009_图层-10 拷贝.jpgRenewal-Zone:有温度的北欧设计︱钢木车库的可持续协奏_0010_图层-11 拷贝.jpgRenewal-Zone:有温度的北欧设计︱钢木车库的可持续协奏_0011_图层-12 拷贝.jpgRenewal-Zone:有温度的北欧设计︱钢木车库的可持续协奏_0012_图层-13 拷贝.jpg

1.jpg
2.jpg
3.jpg
4.jpg
5.jpg
6.jpg




Renewal-Zone:有温度的北欧设计︱钢木车库的可持续协奏_0013_图层-14 拷贝.jpgRenewal-Zone:有温度的北欧设计︱钢木车库的可持续协奏_0014_图层-15 拷贝.jpgRenewal-Zone:有温度的北欧设计︱钢木车库的可持续协奏_0015_图层-16 拷贝.jpg


0
全部评论
相关推荐
>联系我们
REARD团队
电话:18321317492 | 021-66690276
电子邮件:info@reardatchina.com
微信小程序
微信关注
版权所有 ©上海锐埃文化传媒有限公司|REARDatChina.com|reard-urbanrenewal.com 沪ICP备19014984号-1|沪ICP备2022003455号-1
(https://beian.miit.gov.cn/)